TRUMP INTERNATIONAL HOTEL & TOWER DUBAI BY DAR GLOBAL
Trump International Hotel & Tower by Dar Global offers luxury 1 and 2-bedroom apartments in one of Dubai’s most prime locations. The 1-bedroom apartments range from 763 to 882 sq.ft, with prices starting at AED 2.54 million, while 2-bedroom homes range from 1,170 to 1,335 sq.ft, with pricing from AED 3.82 million onwards. These branded residences come with top-quality finishes and beautiful views of the sea and Burj Khalifa. The project is set for completion by December 2031 and offers an easy 90/10 payment plan, where you can book your home with just 10% down payment. This is a great chance to invest in Dubai real estate, known for high appreciation, amazing lifestyle, and the opportunity to get a 10-year Golden Visa.
Trump International Hotel & Tower Dubai by Dar Global is one of the most prestigious new launches in Dubai’s luxury real estate market, offering high-end residences with unmatched views of the Burj Khalifa and the Arabian Sea. Rising 80 floors high, this architectural masterpiece is a symbol of excellence, luxury, and global prestige—perfectly positioned in one of Dubai’s most prime locations.
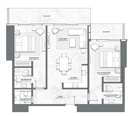
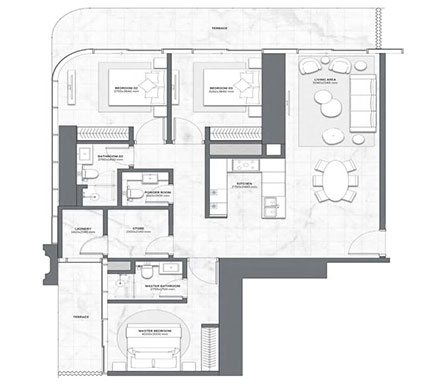
Trump Tower Dubai – Floor Plans & Sales Offer Pricing
- 1 Bedroom | 763 to 882 sq.ft | Starting at AED 2.54 Million (~USD 692,000 | EUR 645,000)
- 2 Bedroom | 1,170 to 1,335 sq.ft | From AED 3.82 Million (~USD 1.04 Million | EUR 970,000)
- 3 Bedroom | 1,642 to 2,170 sq.ft
- 4 Bedroom Penthouse | 7,560 sq.ft
Each residence features fully furnished interiors, modern kitchens, and expansive balconies with breathtaking views of Jumeirah Beach, Downtown Dubai, and the iconic Burj Khalifa. Service charges are expected to range between AED 20-22 per sq.ft.


TRUMP TOWER DUBAI
TRUMP INTERNATIONAL HOTEL & TOWER DUBAI BY DAR GLOBAL
Trump International Hotel & Tower by Dar Global offers luxury 1 and 2-bedroom apartments in one of Dubai’s most prime locations. The 1-bedroom apartments range from 763 to 882 sq.ft, with prices starting at AED 2.54 million, while 2-bedroom homes range from 1,170 to 1,335 sq.ft, with pricing from AED 3.82 million onwards. These branded residences come with top-quality finishes and beautiful views of the sea and Burj Khalifa. The project is set for completion by December 2031 and offers an easy 90/10 payment plan, where you can book your home with just 10% down payment. This is a great chance to invest in Dubai real estate, known for high appreciation, amazing lifestyle, and the opportunity to get a 10-year Golden Visa.
Trump International Hotel & Tower Dubai by Dar Global is one of the most prestigious new launches in Dubai’s luxury real estate market, offering high-end residences with unmatched views of the Burj Khalifa and the Arabian Sea. Rising 80 floors high, this architectural masterpiece is a symbol of excellence, luxury, and global prestige—perfectly positioned in one of Dubai’s most prime locations.
Trump Tower Dubai – Floor Plans & Sales Offer Pricing
- 1 Bedroom | 763 to 882 sq.ft | Starting at AED 2.54 Million (~USD 692,000 | EUR 645,000)
- 2 Bedroom | 1,170 to 1,335 sq.ft | From AED 3.82 Million (~USD 1.04 Million | EUR 970,000)
- 3 Bedroom | 1,642 to 2,170 sq.ft
- 4 Bedroom Penthouse | 7,560 sq.ft
Each residence features fully furnished interiors, modern kitchens, and expansive balconies with breathtaking views of Jumeirah Beach, Downtown Dubai, and the iconic Burj Khalifa. Service charges are expected to range between AED 20-22 per sq.ft.
DAR GLOBAL
TRUMP TOWER
80 Floors
FLOOR PLANS
1-4 Bedroom
Residences
AED
STARTING PRICE
90/10
PAYMENT PLAN
SHEIKH ZAYED ROAD
LOCATION
2031
HANDOVER
Waterside Amenities
Discover an array of immersive amenities nestled within carefully curated gardens that foster enriching interactions with nature. These gardens strategically encircle the main park, creating a harmonious blend of natural beauty and recreation. .
BARBECUE AND OUTDOOR DINING
GYMNASIUM AND FITNESS CENTERS
YOGA AND SUN DECS
INDOOR/OUTDOOR KIDS PLAY AREA
SWIMMING POOLS
CAFE AND RESTAURANT

WHY INVEST IN TRUMP TOWER DUBAI FAQS
BARBECUE AND OUTDOOR DINING
GYMNASIUM AND FITNESS CENTER
YOGA AND SUN DECKS
INDOOR/OUTDOOR KID PLAY AREA
SWIMMING POOLS
CAFE AND RESTAURANT

MERAAS THE ACRES VILLA GALLERY

UNITS OFFERED
AVAILABLE UNITS
A NEW LEVEL OF FAMILY LIVING
A NEW LEVEL OF FAMILY LIVING
BRINGING THE FABLE TO LIFE
WITH INSPIRATION FROM AN ANCIENT CIVILISATION
Dar Global also brings a strong track record with other luxury developments across Dubai and globally. Whether you’re an investor or end user, Trump International Hotel & Tower is a rare opportunity to own in Dubai’s most prestigious address.
Dar Global also brings a strong track record with other luxury developments across Dubai and globally. Whether you’re an investor or end user, Trump International Hotel & Tower is a rare opportunity to own in Dubai’s most prestigious address.
PRIME ADDRESS IN DUBAI
PRIME ADDRESS IN DUBAI
This curated collection of outstanding homes represents the pinnacle of design-led living. Tranquil, private, and the essence of contemporary living, each villa offers a haven of harmony, a spectacular place to belong for discerning connoisseurs of fine living.
This curated collection of outstanding homes represents the pinnacle of design-led living. Tranquil, private, and the essence of contemporary living, each villa offers a haven of harmony, a spectacular place to belong for discerning connoisseurs of fine living.
WORLD CLASS RESIDENCES
These spacious 1 to 3 bedroom residences offer a collection of exclusive features including a master suite overlooking the internal courtyard garden, lagoon, and Sea and features a large bathroom and walk-in closets.
These spacious 1 to 3 bedroom residences offer a collection of exclusive features including a master suite overlooking the internal courtyard garden, lagoon, and Sea and features a large bathroom and walk-in closets.
CONTACT US
CONTACT US
Schedule your site visit, request call back or sent you project details, you can get in touch by completing the contact form below.
Schedule your site visit, request call back or sent you project details, you can get in touch by completing the contact form below.

TELEPHONE:
+971-551554892
LOCATION
TRUMP INTERNATIONAL HOTEL & TOWER
SHEIKH ZAYED ROAD
DUBAI
UAE






















































